本空間以法式復古為基底,融合中古風與現代簡約的設計語言,打造出兼具浪漫氛圍與實用功能的居住體驗,通過材質、線條與色彩的碰撞,勾勒出溫馨且富有層次的生活場景。
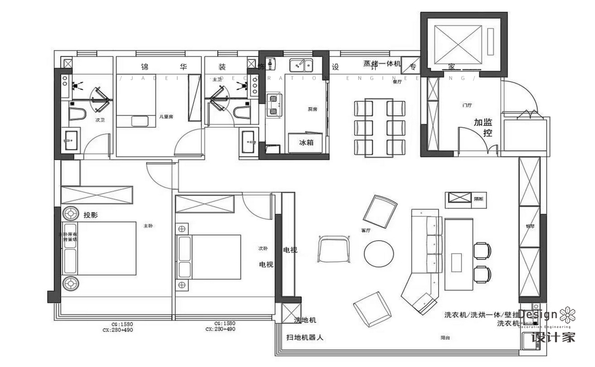
采用開放式布局,將客餐區、休閑區與鋼琴區無縫銜接,打破空間壁壘的同時,利用拱形門洞、半通透玻璃隔斷進行軟性分區,既保證了空間的整體性,又賦予不同功能區獨立的視覺邊界。餐廚區的島臺與餐桌一體化設計,兼顧料理、辦公與用餐需求,實現空間的多功能復用。















江蘇家裝示范品牌
代表地區優秀設計聲音
集28年工程管理經驗之大成
省時、省力更省心
| 走進錦華 | 設計團隊 | 作品列表 | 戶型解析 | 裝修百科 |
關注錦華公眾號
|
瀏覽手機官網 |
全國熱線 025 86550815 |
||||||||||
| 新聞列表 | 錦華文化 | 堂杰國際設計 | 1865旗艦店 | 極簡 | 中古 | 秦淮金茂府 | 常見問題 | ||||||||||
| 全國分公司 | 錦華招聘 | 河西旗艦店 | 鼓北旗艦店 | 法式 | |||||||||||||
| 錦華簡介 | 聯系我們 | 城東旗艦店 | 江寧旗艦店 | 歐式古典 | 北歐 | 中交錦方 | |||||||||||
| 資質榮譽 | 法律聲明 | 江北旗艦店 | 江浦店 | 美式田園 | 新古典 | 溧水玖宸府 | |||||||||||